RIF. 2443 - Podere Storico a Gaiole in Chianti
2443 / Podere Storico a Gaiole in Chianti
Podere Storico a Gaiole in Chianti close

Venduto

7 camere
5 bagni

email invia una richiesta  phone CHIAMA l'agenTE PER TELEFONO

Venduto

Caratteristiche

7 camere
5 bagni

Superficie : 395 mq
Annesso: 65 mq, 40 mq
Distanze: Gaiole in Chianti 5 km, Radda in Chianti 8 km, Siena 31 km
Terreno: 3 ha
Oliveto: 100 ulivi, producono olio del eccellenze
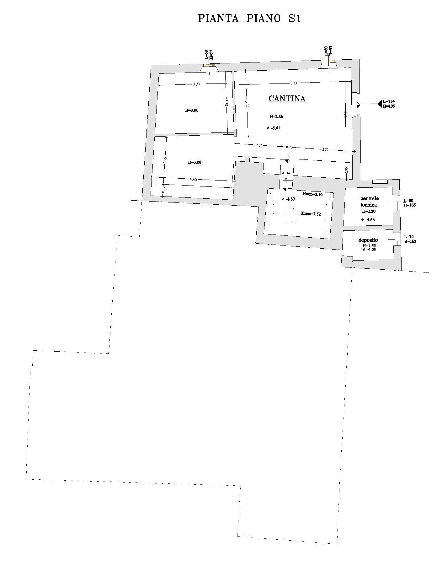
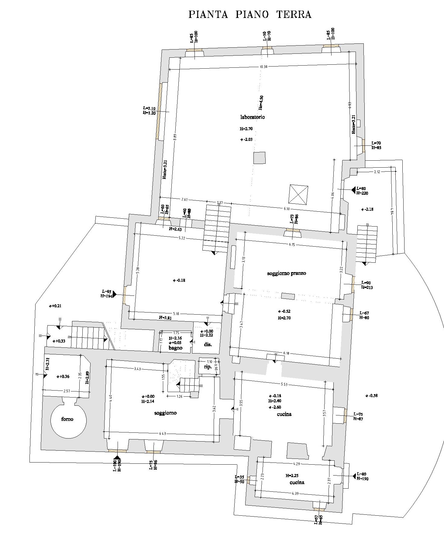
Planimetrie

Scarica la scheda in pdf


Photogallery
  • Descrizione della Proprietà

    Questo tipico podere storico Toscano si trova tra i famosi paesi di Gaiole e Radda in Chianti, con vista panoramica sul paesaggio toscano verso Siena. La proprietà ha origini agricole ed è formata da tre strutture, la casa principale di 550 mq con 6 camere da letto, un ex-fienile di ca. 100 mq e un annesso agricolo che potrebbe essere ristrutturato per adibirlo a un uso diverso. La casa principale si caratterizza per un atelier di 100 mq in cui lavorava il precedente proprietario, un famoso artista.

    La casa principale e il fienile sono abitabili ma hanno bisogno di un po’ di ristrutturazione. La casa principale ha già un nuovo tetto e la struttura è buona, mantiene molti dettagli originali come travi a vista, gran focolari antichi, parete di pietra a vista.

    La proprietà è ideale per chi cerca una sistemazione tranquilla in campagna e desidera trasformarla nella casa dei propri sogni. 3,5 ha di terreno, con 100 olivi, alberi di frutta e bosco, completano la proprietà. E’ possibile costruire una piscina.

     

    Classe energetica G

close