RIF. 3266 - Az. Vinicola e Luogo di Ritiro in Toscana
3266 / Az. Vinicola e Luogo di Ritiro in Toscana
Az. Vinicola e Luogo di Ritiro in Toscana close

Prezzo su Richiesta

9 camere
5 bagni

email invia una richiesta  phone CHIAMA l'agenTE PER TELEFONO

email Prezzo su Richiesta

Caratteristiche

9 camere
5 bagni

Superficie : 1.070 mq tot.
Potenziali camere da letto: tot. 16
Potenziali bagni: tot. 11
Annesso: 4
Cantina: in affitto a 6 km di distanza
Distanze: 7 km Radda e Castellina in Ch., 20 km Siena
Terreno: 60 ha
Vigneto: 3,5 ha Chianti Classico DOCG e IGT
Oliveto: 4,5 ha
Classe energetica: G
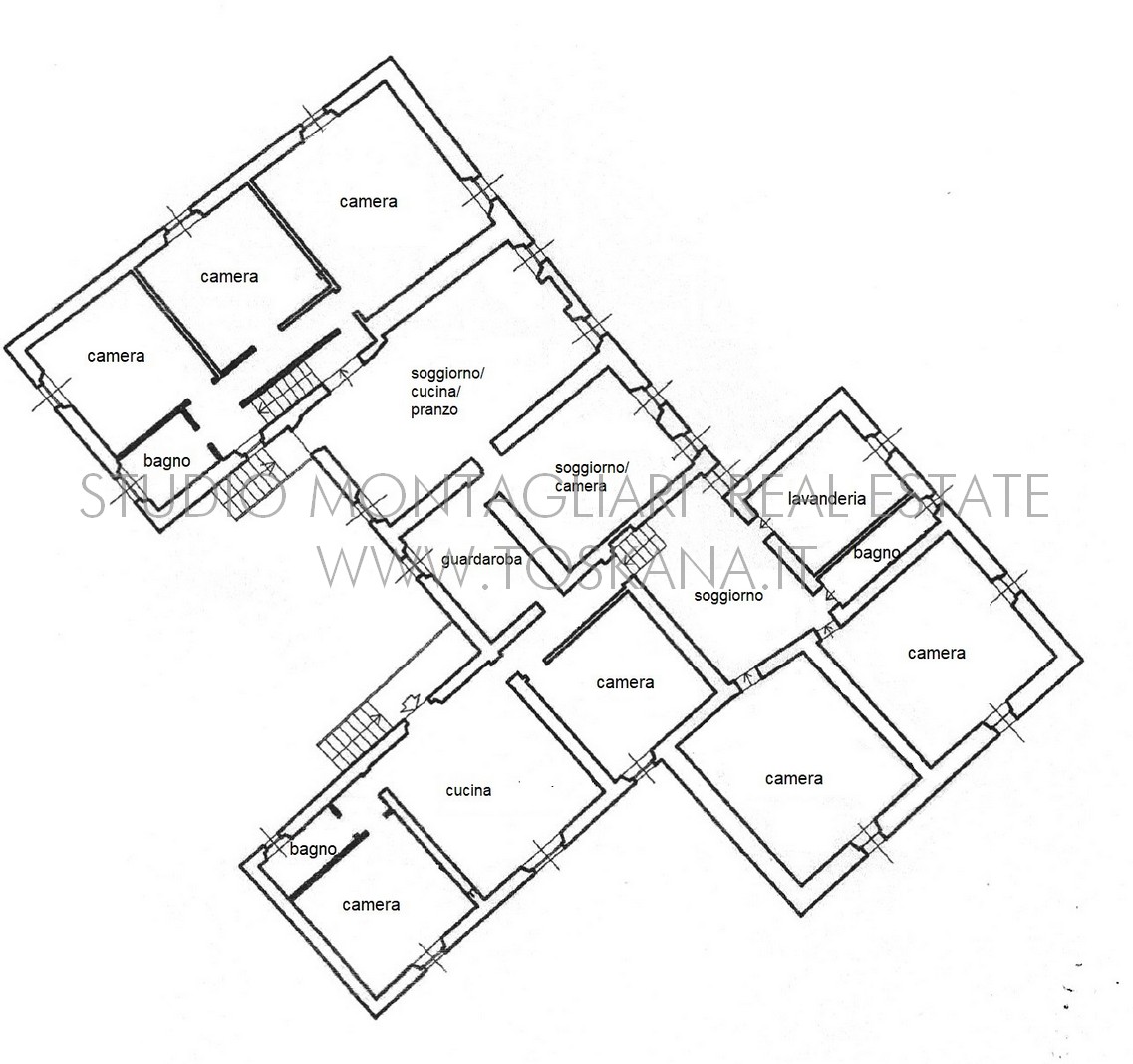
Planimetrie

Scarica la scheda in pdf


Photogallery
  • Descrizione della Proprietà

    Un 'oasi che si estende per oltre 60 ettari nel territorio del Chianti Classico. Il podere comprende 3,5 ettari di vigneti, uliveti, boschi, dolci colline e prati. Situata a metà strada tra i paesi di Radda e Castellina in Chianti, a soli 18 km a nord di Siena, questa dimora appartata, raggiungibile tramite una strada di campagna sterrata lunga 5 km, è un rifugio di pace per gli amanti della natura.

    Dal 1982, dopo significativi interventi di ristrutturazione che hanno preservato il fascino rustico del casale, la proprietà opera come azienda vinicola con la produzione di vini eccellenti. I vigneti della proprietà godono di un terroir unico: l'equilibrio tra suolo, altitudine ed esposizione conferisce ai vini una complessità straordinaria, riconosciuta anche con la certificazione biologica. La produzione annua è di circa 18.000 bottiglie di Chianti Classico DOCG (95% Sangiovese) e di IGT Toscana Rosso (Alicante Bouschet). I terreni agricoli e gli edifici residenziali sono protetti dalla fauna selvatica da una recinzione lunga 1,5 km.

    Il centro di accoglienza  ospita numerosi eventi, quali seminari di consapevolezza, campi estivi, ritiri di danza e yoga.
    Gli edifici principali, con la loro tipica e originale architettura toscana, presentano un cortile lastricato in pietra circondato da due appartamenti, per un totale di otto camere da letto. Ogni appartamento dispone di cucina e bagno propri, nonché di impianto di riscaldamento centralizzato e aria condizionata. A parte dalle abitazioni principali si trova una piccola dependance di 76 mq, recentemente ristrutturata e capace di ospitare fino a quattro persone. I seminari si tengono in una sala suggestiva di 80 mq con pavimento in legno, affiancata da vari spazi per incontri all’aperto, tra cui un'incantevole area danza di 200 mq.
    La superficie abitabile totale è di 585 mq, con ulteriori 480 mq disponibili per nuovi sviluppi. Questi includono una splendida loggia, un ampio ex locale vinicolo a livello del suolo con grandi finestre, e un fienile non ristrutturato di 100 mq con il potenziale per realizzare due ulteriori appartamenti.Gli ambienti sono spaziosi, inondati di luce naturale e godono di viste panoramiche mozzafiato sulla natura circostante, fino al Monte Amiata, distante 70 km.

    La proprietà è perfetta per le esigenze di  una grande famiglia amante della natura, per un centro di ritiri, una casa per ospiti o per  un’organizzazione filantropica.

close