RIF. 21570 - Agriturismo con vigneto e uliveto nel Chianti
21570 / Agriturismo con vigneto e uliveto nel Chianti
Agriturismo con vigneto e uliveto nel Chianti close

€ 2.700.000

15 camere
15 bagni

email invia una richiesta  phone CHIAMA l'agenTE PER TELEFONO

                                                         
EUR. 2.700.000

Caratteristiche

15 camere
15 bagni

Superficie : 755 mq (600 mq casa principale, 155 mq annesso)
Annesso: 1 diviso in due unità collegabili internamente
Distanze: 12 km Castelnuovo Berardenga, 10 km Siena
Terreno: 26,4 ha
Vigneto: 5,6 ha
Oliveto: ca. 180 ulivi
Piscina: 6,5 x 13 m
Classe energetica: G
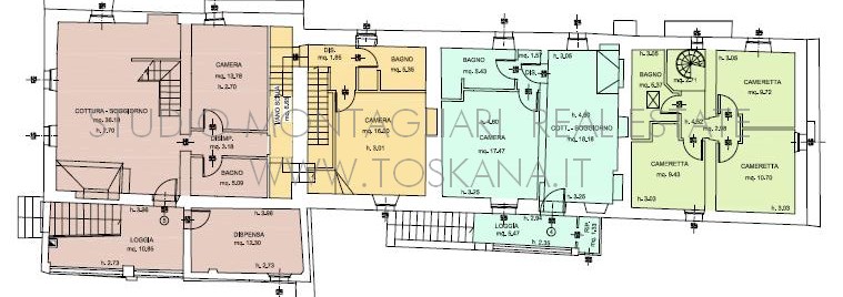
Planimetrie

Scarica la scheda in pdf


Photogallery
  • Descrizione della Proprietà

    Questa fiorente 'azienda biologica, certificata dal 2015, si trova a 10 km dal centro storico di Siena. 
    La grande casa padronale in pietra, di 600 mq, è caratterizzata da una torre del '300 che rappresenta la parte centrale dell'imponente edificio. La struttura è stata ristrutturata finemente alla fine degli anni 90 ed è e suddiviso in 5 unità abitative che sono collegati tra di loro.
    La licenza di agriturismo comprende 18 posti letto.  La proprietà vanta una lunga lista di ospiti d'oltre oceano e dimostra ottimi ritorni economici. L'offerta del soggiorno viene arrotondata con corsi di cucina e cene culinarie per gli ospiti.
    Il terreno, di complessivi 26 ettari è composto da 5,6 ha di vigneto IGT, uliveto e bosco. Attualmente è stato dato in lavorazione a terzi ma vi è la possibilità di costruire la propria cantina.
    Chi gestisce può anche vivere nell’ annesso ristrutturato di 155 mq (135 mq netti) su due livelli con 5 camere e 4 bagni.

    Con un piccolo intervento, tutti gli appartamenti possono essere convertiti un'unica abitazione con ampi spazi interni ed esterni e l'immobile può assumere un ruolo di rappresentanza. Si possono conferire le quote della società agricola.

close